Villa singola in vendita

Mussolente, Via Don Luigi Castagna
€ 235.000
Prezzo aggiornato
5 locali 5 locali
249 Mq 249 Mq
2 bagni 2 bagni

Villa singola in vendita

Mussolente, Via Don Luigi Castagna

Descrizione annuncio

MUSSOLENTE

Nel cuore di Mussolente, in posizione centrale e comoda a tutti i principali servizi, proponiamo casa indipendente con giardino privato, caratterizzata da ampie metrature e da una distribuzione degli spazi pensata per una vita familiare confortevole.

L’abitazione offre ambienti ben definiti e grande potenziale di valorizzazione, ideale per chi desidera personalizzare la propria casa mantenendo il fascino di una soluzione autonoma.

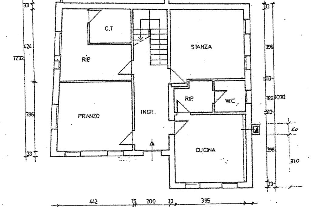
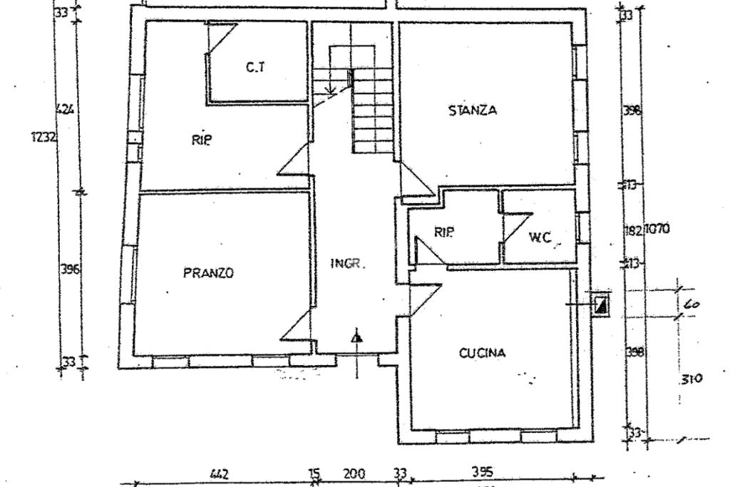
Al piano terra l’ingresso conduce a una cucina abitabile con soggiorno separato, entrambi ben distinti e funzionali. Completano il piano un comodo ripostiglio, un bagno di servizio finestrato, una stanza aggiuntiva perfetta come studio o spazio multifunzionale, oltre alla lavanderia con centrale termica.

Salendo al piano superiore si sviluppa la zona notte, composta da quattro camere, di cui una matrimoniale e 3 doppie, ideali per una famiglia numerosa o per chi desidera ambienti ampi e luminosi. Le camere sono servite da un bagno finestrato con vasca e dal corridoio si accede a un terrazzo.

Completano la proprietà il garage e il giardino di circa 300 mq, spazi riservati da vivere all’aperto, che rendono questa abitazione ancora più completa e funzionale. Una casa che unisce centralità, indipendenza e metrature generose, pronta ad accogliere ogni momento della vita quotidiana.

COME CONTATTARCI:

Chiamaci al numero 0424.383822 o seguiteci su Facebook, cliccando 'Mi Piace' alla pagina Gruppo Tecnocasa Romano d'Ezzelino o su Instagram seguendo @gruppotecnocasaromanodezzelino. Scaricate gratuitamente l'App. Tecnocasa sul vostro smartphone e sarete sempre aggiornati sulle nostre proposte di vendita e di locazione.

Mostra tutto

Nelle vicinanze

Trasporto pubblico Trasporto pubblico
Trasporto pubblico
190 m
San Giacomo - Via Nievo 1^
San Giacomo - Via Nievo 1^
2,4 Km
Scuole Scuole
Scuole
70 m
Istituto comprensivo Mussolente Medie
100 m
Scuola Materna Paritaria Ai Caduti - Asilo Infantile
290 m
Scuola dell'Infanzia di Liedolo
1,6 Km
Scuola primaria di Liedolo Gregorio Barbarigo
1,8 Km
Farmacia Farmacia
Rausse
230 m
Farmacia di Fellette
2,6 Km
Farmacia
3,0 Km
Supermercati Supermercati
Callegaro SISA
180 m
Dpiú
1,5 Km
Callegaro
1,9 Km
Battocchio
2,5 Km
Metà
2,8 Km
Negozi Negozi
Negozi
80 m
Smania
750 m
Eger
1,0 Km
Caseificio Facchinello
2,0 Km
L' Angolo del Pane
2,5 Km
Bar Bar
Meteobar
220 m
Bar
300 m
New bar
650 m
San Martino
1,6 Km
Bar al Palazzetto
2,0 Km
Ristoranti Ristoranti
Ristorante Pizzeria Centrale
260 m
Pizzeria la Pesa
650 m
Cioro
880 m
Malga Rossa
920 m
Trattoria Al Mandriano
970 m
Mostra tutto

Caratteristiche

Rif.:
61163317
Piano:
2 di 2 (Piano su più livelli)
Box:
1
Posti auto:
1
Balconi:
1
Terrazzi:
1
Mostra tutto
Prezzo Prezzo
€ 235.000
Rata mutuo Rata mutuo
€ 1.097 / mese
Spese annue Spese annue
€ 0
Proponi il tuo prezzoProponi il tuo prezzo

Classe Energetica

G
G
G
G
G
G
G
G
G
EP globale non rinnovabile:
289.29 kW h/m² anno
EP globale rinnovabile:
250.00 kW h/m² anno
Anno di costruzione:
1960
Riscaldamento:
Autonomo
Tipo impianto:
A stufa
Tipo alimentazione:
Altro

Prezzo ridotto di €1 (10%%)

Ti interessa visionare l'immobile?

Fissa un appuntamento  Fissa un appuntamento

Richiedi informazioni

Clicca su Leggi per aprire l'informativa
* Questi campi sono obbligatori

Calcola il tuo mutuo

Semplice e senza impegno
Anticipo

( % )
Mutuo

( % )

pochi semplici passi

inserisci i tuoi dati
Questionario completato
Grazie per aver richiesto un appuntamento senza impegno con un nostro Consulente del Credito e Assicurativo.

Hai inserito correttamente tutti i dati necessari e a breve riceverai una e-mail con un link da convalidare per inviare i tuoi dati.
Affiliato
Studio Romano Srl
Via Generale Giardino, 71 36060 Romano D'Ezzelino (VI)
Via Generale Giardino, 71 36060 Romano D'Ezzelino (VI)
Zona: Romano D'Ezzelino-Mussolente-Borso del Grappa
Mostra su mappa
Affiliato
Studio Romano Srl
Via Generale Giardino, 71 36060 Romano D'Ezzelino (VI)

2026 Tecnocasa Franchising S.p.A. - P. IVA 08365160152 - Via Monte Bianco 60/A 20089 Rozzano (MI). Ogni agenzia ha un proprio titolare ed è autonoma. Privacy policy | Policy utilizzo | Cookie policy